JL-Z-43电流继电器-上海上继科技有限公司
发表时间:2020-05-30 00:23 浏览次数:1034 〖返回〗
一、JL-Z-43电流继电器主要用途
JL-Z/43集成电路电压继电器作为继电保护元件,主要用于发电机、变压器、输变电、线路中,作为电力系统交流回路过负荷或短路的启动元件,给出报警信号或切除故障。本系列继电器采用CMOS集成电路进行运算和比较,具有精度高,整定范围宽,动作速度快,返回系数高,功耗低的特点,提供辅助电源后,完全可替代电磁式电流继电器。还增加SJ-4新型壳体,35mm标准导轨安装,外形紧凑,安装方便等优点。
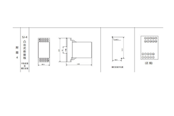
二、JL-Z-43电流继电器外形尺寸及开孔尺寸

三、JL-Z-43电流继电器主要技术参数

1.整定范围0.02~9.99A,级差为0.001A2-99.9A,级差0.1A
其它值可按用户要求定制
2.动作时间1.2倍整定电流,动作时间不大于25mS。
2倍整定电流,动作时间不大于20mS。
3.返回系数过电流继电器:0.9~0.97;欠电流继电器:1.05~1.15。
4.整定误差小于2%。
5.功耗继电器动作,功耗小于5W,继电器不动作,功耗小于4W。
6.触点容量在电压不大于250V时,触点连续接通电流为5A;
在电压不大于250V时,电路时间常数L/R为5mS的直流电路中,可断开30W。
在电压不大于250V时,功率因数COSΦ为0.4的交流电路中,可分断200VA。
7.触点寿命电寿命:105次,机械寿命:106次。
8.绝缘电阻继电器各导电端子连在一起,对外露非带电金属部分或外壳之间,用开路电压为500V的兆欧表测量其绝缘电阻不小于300MΩ。
9.介质强度继电器各带电端子连在一起,对外露飞带电端子或外壳之间能承受有效值为2000V,50Hz的交流电压,历时1分钟而不击穿,不出现闪络现象。
10.抗干扰性能继电器的抗干扰负荷DL478-92《静态继电保护及安全自动装置通用技术条件》。
公司介绍:上海上继科技有限公司是一家专业从事电力系统继电保护及智能电网电力自动化产品的研发、设计、生产、销售和服务为一体的高科技公司。拥有资深继电保护专家团队和国内**的检测仪器及校验设备。同时还引用国内外先进技术,来进行技术创新。本公司的产品广泛用于电力、工矿、铁路、建筑等国家重大工程输配变电系统上,产品远销东南亚及中东地区。产品通过国家继电保护及自动化设备质量监督检验中心检测,获得ISO9001国际质量体系认证。“科技创新,诚信务实”是公司的经营理念,本公司以高超的技术支持和对用户高度负责的售后服务赢得了输配电成套企业的信赖,且树立了良好的信誉。
公司主营:继电器(时间继电器,电压继电器,电流继电器,中间继电器,信号继电器,闪光继电器,冲击继电器,同步检查继电器,接地继电器,差动继电器,重合闸继电器,绝缘监视继电器,双位置继电器,模数化继电器),智能操控装置,微机保护装置,电力仪表
上海上继科技有限公司(专注电力保护继电器生产厂家)销售热线:021-57233089 QQ:1932551438
{以上内容仅供参考,上海上继科技有限公司有最终解释权}
更多继电器精彩文章——DCD-5A差动继电器技术条件及工作原理
- 上一篇:JL-Z-42电流继电器
- 下一篇:JWL-11无辅源电流继电器





